Forum Żeglarskie

Zarejestruj | Zaloguj

Teraz jest 9 paź 2025, o 06:32




Utwórz nowy wątek Odpowiedz w wątku  [ Posty: 5 ] 
Autor Wiadomość
PostNapisane: 11 gru 2017, o 17:43 

Dołączył(a): 7 maja 2013, o 08:14
Posty: 1380
Podziękował : 246
Otrzymał podziękowań: 150
Uprawnienia żeglarskie: sj
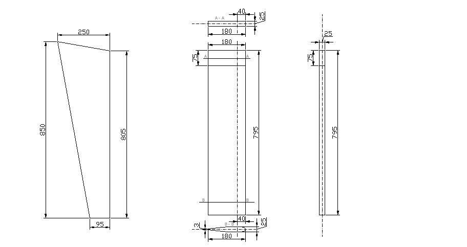
Poszukiwany wykonawca (z okolic śląska :roll: ) statecznika i płetwy serwa samosteru.

Materiał na statecznik posiadam, to sklejka grubości 6 mm o wymiarach 250 mm x 800 mm.
Materiału na płetwę brak, można wykonać z dwóch sklejek grubości 12 mm . Statecznik blaminowany jedną warstwą tkaniny położonej diagonalnie, gramatura, polegam na doświadczeniu wykonawcy. Płetwa oblaminowana dwoma warstwami tkaniny, gramatura jak wyżej, też położone diagonalnie, tak aby część nie profilowana (prostokątna) miała grubość około 25 mm.
Profil naka podobny. Zachować największą grubość profilu (około 25 mm) w odległości 40 mm, od krawędzi natarcia.

Oferty na waclawfud@wp.pl

emeryt


Załączniki:
Do zrobienia.JPG
Do zrobienia.JPG [ 28.73 KiB | Przeglądane 3467 razy ]
Góra
 Zobacz profil  
Odpowiedz z cytatem  
PostNapisane: 12 gru 2017, o 23:37 

Dołączył(a): 4 sty 2015, o 10:43
Posty: 1159
Podziękował : 442
Otrzymał podziękowań: 417
Uprawnienia żeglarskie:
emeryt napisał(a):
Poszukiwany wykonawca (z okolic śląska :roll: ) statecznika i płetwy serwa samosteru.
...Profil naka podobny. Zachować największą grubość profilu (około 25 mm) w odległości 40 mm, od krawędzi natarcia.
emeryt


Wacku, nie naka tylko NACA, co jest skrótem od National Advisory Comitee for Aeronautics.

Słynna amerykańska instytucja badawcza, która zasłynęła opracowaniem niezliczonych zagadnień dotyczących lotnictwa i mechaniki lotu, a szczególnie projektowaniem, badaniami parametrów i opisem bardzo licznych serii profili aerodynamicznych.

Profile opracowane przez NACA zdobyły niezwykłą popularność w lotnictwie, a nazwa agencji została jakby automatycznie przeniesiona na nazwy profilu, np. NACA 6412.

Zwyczajowo, profile opracowane noszą nazwy od miejsc ich powstania, czy zaprojektowania, np. profile pochodzące z instytutu Aerodynamicznego w Getyndze (Göttingen) mają nazwę zaczynającą się od liter i dalej kolejny numer profilu.

NACA, która działała do roku 1958, była poprzedniczką obecnej agencji NASA, znanej przede wszystkim jako firma realizująca amerykański program kosmiczny.

A wracając do pletwy samosteru - warto dane profilu pobrać z tabliczki wybranego profilu, dzięki czemu zapewnisz sobie optymalną sprawność takiego profilu.
Kiedyś korzystaliśmy z książeczkowych tablic profili, np. modeli latających - ale dziś Internet daje niemal nieograniczony dostęp do wszelkich danych opisujących profile aerodynamiczne.

Tabliczka profilu podaje wysokości rzędnych profilu w poszczególnych miejscach cięciwy tego profilu, zwykle co 10% długości cięciwy, poczynając od krawędzi natarcia aż do krawędzi spływu, np. 10% - 3.3, 20% - 4.8, itd. do końca profilu.

Efektywność profilu odczytujesz z wykresu biegunowego profilu, który - mówiąc w pewnym uproszczeniu - pokazuje przebieg zmian wielkości siły nośnej (zwykle Cy) oraz siły oporu (Cx) w funkcji kąta natarcia danego profilu.

Ponieważ liczba opracowanych, i co najważniejsze, przebadanych profili jest olbrzymia, więc warto z tej bazy danych skorzystać, zwłaszcza że w technologii CNC odtwarza się profil z dużą precyzją, co później procentuje w działaniu.

Wszystko to dotyczy naturalnie tylko samej profilowanej pletwy siłownika, ponieważ wszystkie bodaj współcześnie produkowane samostery wiatrowe mają stateczniki w postaci płaskiej płytki.
___________________________

Pozdrawiam
tomasz



Za ten post autor tomasz piasecki otrzymał podziękowania - 2: Jaromir, PilotR
Góra
 Zobacz profil  
Odpowiedz z cytatem  
PostNapisane: 13 gru 2017, o 11:41 

Dołączył(a): 7 maja 2013, o 08:14
Posty: 1380
Podziękował : 246
Otrzymał podziękowań: 150
Uprawnienia żeglarskie: sj
tomasz piasecki napisał(a):
Wacku, nie naka tylko NACA


Tomku, nie NACA, tylko naka (fonetycznie po polsku) podobny[quote="emeryt"]
Zachować największą grubość profilu (około 25 mm) w odległości 40 mm, od krawędzi natarcia.

Wiem co piszę. Nie znalazłem, nie znam profilu NACA serii 00xxx, o największej grubości, w 22% długości cięciwy profilu. A ja taki potrzebuję. Dlatego piszę "naka podobny" a nie NACA. Temat profili, ich odwzorowywanie znam dobrze. Przerabiałem go przy okazji budowy skrzydeł i łopat.

Jeszcze w temacie profili. Tomku, "Cy", to nie jest współczynnik siły nośnej. Uczysz złej wiedzy, wprowadzasz w błąd ludzi nie znających tematu. Nawet za wprowadzenie w błąd Ci dziękują, gdyż uważają Cię za autorytet. Moniia pisze co z takimi autorytetami należy zrobic, ja się z Monią zgadzam.

Do reszty wykładu nie będę się ustosunkowywał, gdyż nie ma on najmniejszego związku z treścią mojego ogłoszenia.

Z poważaniem

emeryt



Za ten post autor emeryt otrzymał podziękowanie od: jedrek
Góra
 Zobacz profil  
Odpowiedz z cytatem  
PostNapisane: 13 gru 2017, o 15:49 

Dołączył(a): 4 sty 2015, o 10:43
Posty: 1159
Podziękował : 442
Otrzymał podziękowań: 417
Uprawnienia żeglarskie:
emeryt napisał(a):
tomasz piasecki napisał(a):
Wacku, nie naka tylko NACA


Tomku, nie NACA, tylko naka...Wiem co piszę...
Temat profili, ich odwzorowywanie znam dobrze. Przerabiałem go przy okazji budowy skrzydeł i łopat...
...Jeszcze w temacie profili. Tomku, "Cy", to nie jest współczynnik siły nośnej.
Uczysz złej wiedzy, wprowadzasz w błąd ludzi nie znających tematu. Nawet za wprowadzenie w błąd Ci dziękują, gdyż uważają Cię za autorytet.
Moniia pisze co z takimi autorytetami należy zrobic, ja się z Monią zgadzam.Do reszty wykładu nie będę się ustosunkowywał, gdyż nie ma on najmniejszego związku z treścią mojego ogłoszenia.
emeryt


No cóż, widać, że "wiesz co piszesz", a "w temacie profili" - jesteś równie dobry, co elegancki.

Zyskasz, być może, dozgonną wdzięczność niekompetentnych, wg Ciebie, Czytelników, którym - jakże błyskotliwie - uświadomiłeś, jaką to, wg Ciebie, "złą wiedzę" im przedstawiłem.

Nie przedstawiłeś swojej "dobrej wiedzy", co jak widać zupełnie Cię nie krępuje, ale brak własnego zdania, w kwestii "co z takimi jak ja należy zrobić" - każe się zastanowić, bo to brzmi poważnie, a język jest skądś znany.

Należało napisać samemu, po męsku, zamiast chować się za plecami Koleżanki.

Ale nawet taka okrojona wypowiedź daje Ci satysfakcję z potrójnego tryumfu: nad poziomem agresji, kulturą dyskusji i zdrowym rozsądkiem.

___________________________

Pozdrawiam
tomasz



Za ten post autor tomasz piasecki otrzymał podziękowania - 2: boSmann, Vela III
Góra
 Zobacz profil  
Odpowiedz z cytatem  
PostNapisane: 18 gru 2017, o 22:12 

Dołączył(a): 7 maja 2013, o 08:14
Posty: 1380
Podziękował : 246
Otrzymał podziękowań: 150
Uprawnienia żeglarskie: sj
emeryt napisał(a):
Poszukiwany wykonawca (z okolic śląska ) statecznika i płetwy serwa samosteru.


Ogłoszenie nie aktualne.


Góra
 Zobacz profil  
Odpowiedz z cytatem  
Wyświetl posty nie starsze niż:  Sortuj wg  
Utwórz nowy wątek Odpowiedz w wątku  [ Posty: 5 ] 


Kto przegląda forum

Użytkownicy przeglądający ten dział: Brak zidentyfikowanych użytkowników i 89 gości


Nie możesz rozpoczynać nowych wątków
Nie możesz odpowiadać w wątkach
Nie możesz edytować swoich postów
Nie możesz usuwać swoich postów
Nie możesz dodawać załączników

Szukaj:
[ Index Sitemap ]
Łódź motorowa | Frezowanie modeli 3D | Stocznia jachtowa | Nexo yachts | Łodzie wędkarskie Barti | Szkolenia żeglarskie i rejsy NATANGO
Olej do drewna | SAJ | Wypadki jachtów | Marek Tereszewski dookoła świata | Projektowanie graficzne


Wszystkie prawa zastrzeżone. Żaden fragment serwisu "forum.zegluj.net" ani jego archiwum
nie może być wykorzystany w jakiejkolwiek formie bez pisemnej zgody właściciela forum.żegluj.net
Copyright © by forum.żegluj.net


Nasze forum wykorzystuje ciasteczka do przechowywania informacji o logowaniu. Ciasteczka umożliwiają automatyczne zalogowanie.
Jeżeli nie chcesz korzystać z cookies, wyłącz je w swojej przeglądarce.



POWERED_BY
Przyjazne użytkownikom polskie wsparcie phpBB3 - phpBB3.PL