Forum Żeglarskie

Zarejestruj | Zaloguj

Teraz jest 15 paź 2025, o 17:25




Utwórz nowy wątek Odpowiedz w wątku  [ Posty: 30 ] 
Autor Wiadomość
PostNapisane: 23 paź 2012, o 14:17 
Avatar użytkownika

Dołączył(a): 16 sie 2009, o 01:45
Posty: 9992
Podziękował : 2979
Otrzymał podziękowań: 3355
Uprawnienia żeglarskie: różne....
Już od dawna, od bardzo dawna chodzi mi po głowie myśl, że kopiąc raptem 2700 metrów płytkowodnego kanału można zyskać ponad 6 kilometrów kwadratowych wody dodanych do szlaku! O tak:
Załącznik:
o.jpg
o.jpg [ 64.45 KiB | Przeglądane 17295 razy ]


Już wykonanie tak niedługiego kanału i postawienie dwu zaledwie śluz o skoku poniżej 1m umożliwia bowiem włączenie do kompleksu "Jeziorak - Kanał Iławski - Kanał Elbląski - Drwęckie" dwu interesujących jezior. Byłby to ciekawy, boczny szlak o ogromnym potencjale turystycznym dla wędrujących wodniaków. Do na prawdę sporej powierzchni wody dochodzą dziesiątki kilometrów atrakcyjnych brzegów na dwu znakomitych biwakowo jeziorach...

Myślę o połączeniu kanału Iławskiego (od Mozgowa, tuż za jez. Dauby) z niwielkim jeziorem Kocioł, o tak:
Załącznik:
Kanal na Gil 1.jpg
Kanal na Gil 1.jpg [ 329.23 KiB | Przeglądane 17323 razy ]



Naturalnie rownie istotne jest połączenie dalej, z dużym, urozmaiconym jeziorem Gil Wielki, o tak:
Załącznik:
Kanal na Gil 2.jpg
Kanal na Gil 2.jpg [ 341.99 KiB | Przeglądane 17323 razy ]


Naszkicowana powyżej ad hoc trasa kanału przebiega istniejącymi rowami melioracyjnymi (Mozgowo - Kocioł, w 90%) lub naturalnymi ciekami wodnymi (Kocioł - Gil, w 100%). Nigdzie nie występuje konieczność prowadzenia robot ziemnych na dużą skalę (patrzcie na poziomice).
Na naszkicowanej powyżej trasie kanału nie ma potrzeby budowania żadnych mostów na głównych drogach, są tylko 3 lokalne, polne trakty (wzdłuż Kanału Iławskiego, na północnym brzegu Kotła i na wylocie strugi z Kotła do Gila).
Na optymalnej trasie kanałków nie ma żadnej kolei, nie ma rurociągów, nawet kanalizy i instalacji wodociągowych AFAIK brak. Z trasą krzyżuje się tylko jedna linia enegetyczna!
Kanał wymagałby na każdym z dwu odcinków jednej, niewielkiej śluzy (one mogłyby z punktu być "jachtowej" wielkości, np. 12x3.5m), różnica poziomu Jezioraka i Kotła to 1.0m, między Kotłem a Gilem również średnio 1.0m.

Co o tym myślicie? ;)

_________________
Jaromir Rowiński aka pierdupierdu
Jeżeli masz ochotę komentować takie poglądy, których co prawda nigdy nie wyraziłem, ale które kompletnie bez sensu i z sobie tylko znanej przyczyny usiłujesz mi przypisać - droga wolna. Śmiesznych nigdy dość...


Góra
 Zobacz profil  
Odpowiedz z cytatem  
PostNapisane: 23 paź 2012, o 14:44 
Avatar użytkownika

Dołączył(a): 16 sie 2009, o 01:45
Posty: 9992
Podziękował : 2979
Otrzymał podziękowań: 3355
Uprawnienia żeglarskie: różne....
Możliwe jest nawet krótsze połączenie - samego jeziora Gil Wielki z Kanałem Iławskim - spod Dębinki. Byłoby ono jednak bardziej skomplikowane technicznie przez ilość mostów i konieczność "skrzyżowania" z płynącą ponad 2m poniżej poziomu kanału rzeczką i omijałoby urokliwe jezioro Kocioł z pałacem w Karnitkach:


Załączniki:
Kanal na Gil 3.jpg
Kanal na Gil 3.jpg [ 329.54 KiB | Przeglądane 17287 razy ]

_________________
Jaromir Rowiński aka pierdupierdu
Jeżeli masz ochotę komentować takie poglądy, których co prawda nigdy nie wyraziłem, ale które kompletnie bez sensu i z sobie tylko znanej przyczyny usiłujesz mi przypisać - droga wolna. Śmiesznych nigdy dość...
Góra
 Zobacz profil  
Odpowiedz z cytatem  
PostNapisane: 23 paź 2012, o 15:15 
Avatar użytkownika

Dołączył(a): 21 kwi 2006, o 11:31
Posty: 17577
Lokalizacja: Warszawa
Podziękował : 2363
Otrzymał podziękowań: 3701
Uprawnienia żeglarskie: ***** ***
Sprawdziłeś czy na trasie przebiegu kanału nie żyje jakaś biedronka krzywonóżka albo nie ma siedliska wróbla szarego?
Bo wiesz... to wyklucza jakiekolwiek ruszanie łopatą.
Poza tym czy obszaru Natura-srura 2000, to tam na pewno nie ma?

:-)

A tak całkiem poważnie. Polacy nie są zdolni do takich poważnych inwestycji, przerasta to naszych inżynierów.

_________________
Pozdrawiam,
Marek Grzywa


Góra
 Zobacz profil  
Odpowiedz z cytatem  
PostNapisane: 23 paź 2012, o 15:39 
Avatar użytkownika

Dołączył(a): 6 lip 2008, o 18:57
Posty: 2300
Lokalizacja: WZ
Podziękował : 491
Otrzymał podziękowań: 406
Uprawnienia żeglarskie: Xero z kota
Maar napisał(a):
Polacy nie są zdolni do takich poważnych inwestycji, przerasta to naszych inżynierów.

Trzeba poczekać na Prusaków, co przyjdą, zagrabią i zbudują (jak Mazurskie śluzy i kanały), a potem zrobić trzy nieudane powstania ;)
...nie inżynierów, tylko organy władczo-decyzyjne.

_________________
Pozdrawiam
ŁJ


Góra
 Zobacz profil  
Odpowiedz z cytatem  
PostNapisane: 23 paź 2012, o 15:50 
Avatar użytkownika

Dołączył(a): 21 kwi 2006, o 11:31
Posty: 17577
Lokalizacja: Warszawa
Podziękował : 2363
Otrzymał podziękowań: 3701
Uprawnienia żeglarskie: ***** ***
lj78 napisał(a):
...nie inżynierów, tylko organy władczo-decyzyjne.

Jarek zapewne chciał podyskutować o pomyśle a ja mu tu OT, ale nie mogę się powstrzymać.

Nie inżynierów, nie organy, nie to, nie siamto. Polacy jedynie do czego są zdolni, to do robienia szopek patriotycznych i do wyrzucania pieniędzy w błoto. Do każdego innego przedsięwzięcia potrzebny jest obcy kapitał, obcy inżynier, obcy nadzorca, itd.

_________________
Pozdrawiam,
Marek Grzywa


Góra
 Zobacz profil  
Odpowiedz z cytatem  
PostNapisane: 23 paź 2012, o 17:26 
Avatar użytkownika

Dołączył(a): 16 sie 2009, o 01:45
Posty: 9992
Podziękował : 2979
Otrzymał podziękowań: 3355
Uprawnienia żeglarskie: różne....
Maar napisał(a):
A tak całkiem poważnie. Polacy nie są zdolni do takich poważnych inwestycji, przerasta to naszych inżynierów.

Mam wrażenie, że całkiem bez sensu generalizujesz. Może czynisz tak na podstawie jakiś traumatycznych, lokalnych doświadczeń? :lol:
BTW - nie piszemy przecież o żadnej poważnej inwestycji, tylko o niecałych 3 km płytkowodnego kanału, o trzech malutkich mostkach i o dwu mikro-śluzach...

_________________
Jaromir Rowiński aka pierdupierdu
Jeżeli masz ochotę komentować takie poglądy, których co prawda nigdy nie wyraziłem, ale które kompletnie bez sensu i z sobie tylko znanej przyczyny usiłujesz mi przypisać - droga wolna. Śmiesznych nigdy dość...


Góra
 Zobacz profil  
Odpowiedz z cytatem  
PostNapisane: 23 paź 2012, o 17:51 
Avatar użytkownika

Dołączył(a): 16 sie 2009, o 01:45
Posty: 9992
Podziękował : 2979
Otrzymał podziękowań: 3355
Uprawnienia żeglarskie: różne....
Maar napisał(a):
lj78 napisał(a):
...nie inżynierów, tylko organy władczo-decyzyjne.

Jarek zapewne chciał podyskutować o pomyśle a ja mu tu OT, ale nie mogę się powstrzymać.

Nie inżynierów, nie organy, nie to, nie siamto. Polacy jedynie do czego są zdolni, to do robienia szopek patriotycznych i do wyrzucania pieniędzy w błoto. Do każdego innego przedsięwzięcia potrzebny jest obcy kapitał, obcy inżynier, obcy nadzorca, itd.

Jakby Ci tu, jakoś tak delikatnie...
Może po prostu powiem, że pierdo...sz i to jak potłuczony!

Zostawimy jednak na boku twoje generalne wyobrażenia o Polakach (możesz przyjąć roboczo, że jest mi całkiem obojętne jakiej narodowości inżynier byłby twórcą proponowanego kanałku, rozszerzajacego dostepność jezior Pojezierza Iławskiego).
Bardziej interesuje mnnie jaka byłaby chęć poznawania nowych akwenów, na przykład Gila czy Kotła - wśrod tych okropnych Polaków, którzy żeglują ...

_________________
Jaromir Rowiński aka pierdupierdu
Jeżeli masz ochotę komentować takie poglądy, których co prawda nigdy nie wyraziłem, ale które kompletnie bez sensu i z sobie tylko znanej przyczyny usiłujesz mi przypisać - droga wolna. Śmiesznych nigdy dość...


Góra
 Zobacz profil  
Odpowiedz z cytatem  
PostNapisane: 23 paź 2012, o 18:16 

Dołączył(a): 12 maja 2012, o 21:53
Posty: 166
Lokalizacja: Gdynia
Podziękował : 7
Otrzymał podziękowań: 9
Uprawnienia żeglarskie: s.j. + diletanti na VR
Mnie się pomysł podoba. Dajcie znać kiedy, a stawię się z łopatą.

_________________
"I don't have much money but boy if I did
I'd buy a sail boat where we both could live"


Góra
 Zobacz profil  
Odpowiedz z cytatem  
PostNapisane: 23 paź 2012, o 18:28 
Avatar użytkownika

Dołączył(a): 21 kwi 2006, o 11:31
Posty: 17577
Lokalizacja: Warszawa
Podziękował : 2363
Otrzymał podziękowań: 3701
Uprawnienia żeglarskie: ***** ***
pierdupierdu napisał(a):
Jakby Ci tu, jakoś tak delikatnie...
Może po prostu powiem, że pierdo...sz i to jak potłuczony!
Wiem :-) Ale nie mogłem się powstrzymać.

Pomysł świetny - każdemu hydrorozbudowowemu pomysłowi przyklaskuję, bo czym więcej infrastruktury związanej z wodą, tym przyjemniejsze życie jest.

pafka napisał(a):
Dajcie znać kiedy, a stawię się z łopatą.
O! Taką postawę należy pochwalać :-) Damy wniosek na egzekutywę.

_________________
Pozdrawiam,
Marek Grzywa


Góra
 Zobacz profil  
Odpowiedz z cytatem  
PostNapisane: 23 paź 2012, o 19:49 
Avatar użytkownika

Dołączył(a): 9 sie 2010, o 05:58
Posty: 2850
Podziękował : 445
Otrzymał podziękowań: 736
Uprawnienia żeglarskie: sternik jachtowy
Maar napisał(a):
Sprawdziłeś czy na trasie przebiegu kanału nie żyje jakaś biedronka krzywonóżka albo nie ma siedliska wróbla szarego?
Bo wiesz... to wyklucza jakiekolwiek ruszanie łopatą.
Przeciwwskazań przyrodniczych nie należy lekceważyć. Ale ogólnie według mnie bardzo ciekawy pomysł.


Góra
 Zobacz profil  
Odpowiedz z cytatem  
PostNapisane: 24 paź 2012, o 19:51 
Avatar użytkownika

Dołączył(a): 25 kwi 2006, o 13:57
Posty: 3996
Podziękował : 657
Otrzymał podziękowań: 613
Uprawnienia żeglarskie: szkutnik drewkarz,motorówkarz
Maar napisał(a):
czym więcej infrastruktury związanej z wodą, tym przyjemniejsze życie jest.

To może warto rozważyć zamieszkanie na terenie jakiegoś terminala kontenerowego? ;)

_________________
Zbyszek


Góra
 Zobacz profil  
Odpowiedz z cytatem  
PostNapisane: 24 paź 2012, o 20:11 
Avatar użytkownika

Dołączył(a): 30 lis 2011, o 20:33
Posty: 2037
Podziękował : 313
Otrzymał podziękowań: 953
Uprawnienia żeglarskie: niebieskie, plastikowe, ze zdjęciem
Albo w Ciechocinku...

_________________
Daniel
***** ***
"W demokracji wolno głupcom głosować, w dyktaturze wolno głupcom rządzić." B. Russell
"Propaganda u ruskich jest potrzebna, bo jak im wyłączycie TV zorientują się, że są głodni." Internet
"To dziwne być w tym samym wieku co starzy ludzie." tamże


Góra
 Zobacz profil  
Odpowiedz z cytatem  
PostNapisane: 24 paź 2012, o 22:08 
Avatar użytkownika

Dołączył(a): 16 sie 2009, o 01:45
Posty: 9992
Podziękował : 2979
Otrzymał podziękowań: 3355
Uprawnienia żeglarskie: różne....
Marian J. napisał(a):
Maar napisał(a):
Sprawdziłeś czy na trasie przebiegu kanału nie żyje jakaś biedronka krzywonóżka albo nie ma siedliska wróbla szarego?
Bo wiesz... to wyklucza jakiekolwiek ruszanie łopatą.
Przeciwwskazań przyrodniczych nie należy lekceważyć. Ale ogólnie według mnie bardzo ciekawy pomysł.

Sprawdziłem.
Zarówno proponowane odcinki kanałów jak włączane nimi do szlaku jeziora nie leżą w obszarze ochrony gatunkowej czy siedliskowej "Natura 2000".
Nie leżą też w parku krajobrazowym ani nie leżą w jego "otulinie".
Na trasie i na jeziorach nie ma rezerwatów przyrody.

Jedyny rezerwat na jaki ewentualnie miałby wpływ "Kanał na Gil" to "Rezerwat Jezioro Iłgi".. Przepływa przez ten rezerwat rzeka Iłga, która odprowadza wody jez. Gil Wielki do jez. Drwęckiego. Należałoby rozważyć wpływ zwiększenia przepływów rz. Iłgi w wyniku odprowadzania wody pochodzącej ze śluzowań na proponowanym kanale. Byłoby to jednak zwiększenie przepływu niemal marginalne, w granicach 3% średniego przepływu SSQ Iłgi (przy maksymalnej ilości jednostek ca 40/dobę i wymiarach śluzy ca 12x3.5m).

Samo jezioro Gil Wielki jest objęte strefą ciszy - ale to chyba akurat dobrze :roll:

_________________
Jaromir Rowiński aka pierdupierdu
Jeżeli masz ochotę komentować takie poglądy, których co prawda nigdy nie wyraziłem, ale które kompletnie bez sensu i z sobie tylko znanej przyczyny usiłujesz mi przypisać - droga wolna. Śmiesznych nigdy dość...


Góra
 Zobacz profil  
Odpowiedz z cytatem  
PostNapisane: 24 paź 2012, o 23:13 
Avatar użytkownika

Dołączył(a): 7 cze 2010, o 19:37
Posty: 13948
Lokalizacja: Port Rybnik
Podziękował : 1657
Otrzymał podziękowań: 2406
Uprawnienia żeglarskie: sternik jachtowy
Pomysł ciekawy, czy realny ? :roll:
Znalazłem w sieci...


Załączniki:
Komentarz: Mapa batymetryczna jeziora Gil Wielki .
gil-wielki.jpg
gil-wielki.jpg [ 56.12 KiB | Przeglądane 16834 razy ]

_________________
Wojciech1968 Port Rybnik
W życiu piękne są tylko chwile...

Za ten post autor Wojciech otrzymał podziękowanie od: Jaromir
Góra
 Zobacz profil  
Odpowiedz z cytatem  
PostNapisane: 25 paź 2012, o 00:56 
Avatar użytkownika

Dołączył(a): 12 lut 2007, o 08:39
Posty: 1512
Lokalizacja: DC
Podziękował : 140
Otrzymał podziękowań: 84
pierdupierdu napisał(a):
Co o tym myślicie? ;)
My? My nic nie myślimy, nie przedstawiłeś gdyż albowiem żadnych argumentów za tym, że budowa kanału spowoduje:
-- poprawę dywersyfikacji dostaw gazu do nas;
-- zepsucie dywersyfikacji dostaw gazu do innych (obcych, ang. aliens);
-- albo odwrotnie...
-- zmuszenie, by kogokolwiek zakopał swoją rurę z gzem jeszcze głębiej, niż już ją był zakopał, a najlepiej, by oną rurę z gazem sobie wsadził tam, skąd każdemu czasem gazy ulatują;
-- itd.

Prywatnie zaś: nie, nie podoba mi się ten Twój projekt, bo nie wymaga wykonania przekopu przez ani jedną Mierzeję Wiślaną!

I co to w ogóle ma być? Ty tak bez wizualizacji 3D, same mapy???

Ech... nieprawdaż?

:lol: :lol: :lol:

_________________
Marcin "Cypis" Kantorek - http://www.dino.merigold.pl


Góra
 Zobacz profil  
Odpowiedz z cytatem  
PostNapisane: 25 paź 2012, o 06:34 
Avatar użytkownika

Dołączył(a): 1 sie 2010, o 11:32
Posty: 14403
Lokalizacja: Miasto 178 Mm na południe od Bornholmu
Podziękował : 1967
Otrzymał podziękowań: 2056
Uprawnienia żeglarskie: Kurde, no, brzydzę się sobą ale mam.
To jak ? Organizujemy SIZ koparkowo-łopatowy ? :D

_________________
Konsul 37 "Don Kichot"
POL 0001WR
MMSI 261037650
https://jachtdonkichot.pl/


A po nocy nadchodzi dzień... I niech już tak zostanie.


Góra
 Zobacz profil  
Odpowiedz z cytatem  
PostNapisane: 25 paź 2012, o 09:35 
Avatar użytkownika

Dołączył(a): 10 sie 2010, o 14:05
Posty: 696
Lokalizacja: Warszawa
Podziękował : 11
Otrzymał podziękowań: 28
Uprawnienia żeglarskie: jak jestem za sterem to sternik
Teraz trzeba zrobić biznesplan.
Za i przeciw, analiza SWOT, co to wniesie w rozwój regionu?
I czy ludzie będą tłuc się kanałkiem, żeby wpłynąć na oczko wodne bez infrastruktury?

Bajdełejem, ile wykopanie takiego rowka kosztuje? :lol:

Niestety w naszej RP do takich projektów nie mogą być zatrudnieni
więźniowie, żołnierze, harcerze itd..
Teraz za pracę trzeba płacić, lepiej lub gorzej ale zawsze.


Góra
 Zobacz profil  
Odpowiedz z cytatem  
PostNapisane: 25 paź 2012, o 14:16 
Avatar użytkownika

Dołączył(a): 16 sie 2009, o 01:45
Posty: 9992
Podziękował : 2979
Otrzymał podziękowań: 3355
Uprawnienia żeglarskie: różne....
Viking napisał(a):
Teraz trzeba zrobić biznesplan.
Za i przeciw, analiza SWOT, co to wniesie w rozwój regionu?
I czy ludzie będą tłuc się kanałkiem, żeby wpłynąć na oczko wodne bez infrastruktury?

Bajdełejem, ile wykopanie takiego rowka kosztuje? :lol:

Niestety w naszej RP do takich projektów nie mogą być zatrudnieni
więźniowie, żołnierze, harcerze itd..
Teraz za pracę trzeba płacić, lepiej lub gorzej ale zawsze.

Wiesz - to na razie luźny pomysł tylko.
Nie trzeba go torpedować, a już zwłaszcza naciąganymi argumentami. :/

Co do samych argumentów - bazując na mojej tylko, ograniczonej wiedzy lokalnej:
"Tłuc kanałkiem" - to ca 30 minut na silniku (całość wraz z przejściem j. Kocioł to mniej niż 4km). Plus 2x 10 minut na śluzowanie.
"Oczko wodne" - to liczący blisko 5.5 km² Gil Wielki - jezioro większe niż Ewingi, większe niż Brtężek, niewiele mniejsze niż Duckie, czy Szeląg Wielki - i zdecydowanie bardziej od tych dwu ostatnich urozmaicone. Kanał otworzyłby dla wodniackiej turystyki piąte co do wielkości jezioro pojezierza Iławskio-Ostródzkiego, krajobrazowo i żeglarsko bardzo atrakcyjne, czyste, rybne i głębokie.
"Brak infrastruktury" - nad Gilem Wielkim jest co najmniej jeden ośrodek w każdej chwili gotów przyjmować wodniaków ( http://www.kaletka.pl/). Po drodze, nad j. Kocioł jest duży kompleks turystyczno-wypoczynkowy przy pałacu w Karnitach ( http://www.karnity.pl/ ) - z przystanią. Ponadto "brak infrastruktury" dla wodniaków szybciutko zanika, jeżeli pojawia się wodniacki ruch turystyczny - więc nic nie szkodzi na przeszkodzie aby Murawki stały się drugimi Siemianami :roll:

Studium wykonalności i opłacalności jest oczywiście potrzebne, tylko lokalnym władzom musiałoby się najpierw zacząć chcieć zbadać korzyści dla regionu - i tu problem jest na pewno większej skali, niż samo wykonanie nowego połączenia...

Bajdełej - w naszej RP wydaje się znacznie większe pieniądze na budowę różnych dziwnych rzeczy... umiarkowanie potrzebnych. Na przykład sieć tramwajów wodnych Trójmiasta (kilkanaście przystani oddanych w ostatnich latach, koszt kilkadziesiąt milionów) właśnie stoi przed perspektywą zwinięcia, z powodu braku dotacji... a chyba przede wszystkim sensu. Na przykład Iława, która właśnie zaczyna budować duży towarowy port śródlądowy, przy całkowitym braku perspektyw dla żeglugi towarowej na Jezioraku i kanale Elbląskim...
Mam nieodparte wrażenie, że "mój" kanał do jeziora Gil Wielki ma więcej sensu :lol:

_________________
Jaromir Rowiński aka pierdupierdu
Jeżeli masz ochotę komentować takie poglądy, których co prawda nigdy nie wyraziłem, ale które kompletnie bez sensu i z sobie tylko znanej przyczyny usiłujesz mi przypisać - droga wolna. Śmiesznych nigdy dość...



Za ten post autor Jaromir otrzymał podziękowanie od: adherent
Góra
 Zobacz profil  
Odpowiedz z cytatem  
PostNapisane: 25 paź 2012, o 18:27 
Avatar użytkownika

Dołączył(a): 8 lut 2010, o 10:24
Posty: 10967
Lokalizacja: Paryz
Podziękował : 1349
Otrzymał podziękowań: 2633
Uprawnienia żeglarskie: wszelakie : )
pierdupierdu napisał(a):
Nie trzeba go torpedować, a już zwłaszcza naciąganymi argumentami.

Aniłej nikt tego nie czyni!
Pomysl jest bardzo ciekawy: najbardziej podoba mi sie koncept zawarty w tytule - "Poszerzanie", czyli takze odciazanie. Jesli jeszcze sprawi to radosc zeglarzom i pozwoli na zarobek miejscowym jezioranom od szlakow odcietych...
Catz Zachwycony ( Chwilowo bez kapitalu, niestety )

_________________
Naziole, w pysk wam mówię litość moje ( prawie Wyspianski)


Góra
 Zobacz profil  
Odpowiedz z cytatem  
PostNapisane: 27 paź 2012, o 22:06 
Avatar użytkownika

Dołączył(a): 10 sie 2010, o 14:05
Posty: 696
Lokalizacja: Warszawa
Podziękował : 11
Otrzymał podziękowań: 28
Uprawnienia żeglarskie: jak jestem za sterem to sternik
pierdupierdu napisał(a):
Studium wykonalności i opłacalności jest oczywiście potrzebne, tylko lokalnym władzom musiałoby się najpierw zacząć chcieć zbadać korzyści dla regionu - i tu problem jest na pewno większej skali, niż samo wykonanie nowego połączenia...

Dokładnie tak, przekonanie lokalnych władz to 80% sukcesu.
Oni musieliby napisać biznesplan i wydębić dotację na realizację planu.

Nikt nie torpeduje pomysłu ani nie mówi, że byłby zły.
Może moje "oczko wodne" było źle odebrane. Jak na województwo warmińsko-mazurskie to jednak mały akwen. Gdzieś w innych regionach kraju taki akwen byłby zbawieniem dla żeglarzy.

Spróbuj może wysłać maila do lokalnego samorządu i zobaczysz co i jak.

Tylko jak nazwać przyszły wykopany kanał?
Pierdupierdu canal? :lol:


Góra
 Zobacz profil  
Odpowiedz z cytatem  
PostNapisane: 28 paź 2012, o 03:55 
Avatar użytkownika

Dołączył(a): 14 cze 2009, o 07:49
Posty: 4953
Lokalizacja: 50°1'N 22°3'E
Podziękował : 191
Otrzymał podziękowań: 114
Uprawnienia żeglarskie: kiper patentowany
Łopata w gotowości, pióro do podpisania ewentualnej petycji też.

_________________
Słаwek vel Wąski
"Mаrynаrz powinien być chlujny i mrаwy..."


Góra
 Zobacz profil  
Odpowiedz z cytatem  
PostNapisane: 28 paź 2012, o 07:30 
Avatar użytkownika

Dołączył(a): 7 cze 2010, o 19:37
Posty: 13948
Lokalizacja: Port Rybnik
Podziękował : 1657
Otrzymał podziękowań: 2406
Uprawnienia żeglarskie: sternik jachtowy
Jaromir nie brał jeszcze pod uwagę tego, iż grunty, na których miałby przebiegać Kanał Rowińskiego są w posiadaniu prywatnych właścicieli.
I lepiej już teraz zainwestować w wykup tych gruntów http://www.enormo.pl/dzia%C5%82ki+nad+jeziorem+gil zanim osiągną cenę zaporową, gdy tylko właściciele zwiedzą się o planach budowy kanału. ;)

_________________
Wojciech1968 Port Rybnik
W życiu piękne są tylko chwile...


Góra
 Zobacz profil  
Odpowiedz z cytatem  
PostNapisane: 11 lis 2012, o 19:26 

Dołączył(a): 3 sie 2009, o 14:17
Posty: 28
Podziękował : 3
Otrzymał podziękowań: 0
Uprawnienia żeglarskie: sternik jachtowy
może nie być tam gatunków z listy, ale tak czy siak ocenę oddziaływania na środowisko trzeba byłoby zrobić, do tego studium itp. itd. Jeżeli ludziska się dowiedzą, to, jak już napisano - podniosą stawki za grunty. A dowiedzą się, jeśli tylko którakolwiek z procedur zostanie uruchomiona.

Pomysł wart uwagi (nie mieszkam w tym pięknym zakątku naszego dziwnego kraju, ale co rok pływam, więc jestem za). Jeżeli miałby przybrać jakieś w miarę realne kształty (albo jeden kształt:), to najlepiej byłoby przekonać Związek Gmin Jeziorak, który ma inne niż tylko gminne, czy miejskie budżety źródła finansowania. Może nawet zdobyć pieniądze na dokumentację, która tania nie jest.

Przed nowym okresem programowania z UE zdążyliby wszystko przygotować, no a potem tylko napisać wniosek. Rzecz do przeprowadzenia, tylko czy będzie im się chciało?


Góra
 Zobacz profil  
Odpowiedz z cytatem  
PostNapisane: 11 lis 2012, o 21:13 
Avatar użytkownika

Dołączył(a): 10 sie 2010, o 14:05
Posty: 696
Lokalizacja: Warszawa
Podziękował : 11
Otrzymał podziękowań: 28
Uprawnienia żeglarskie: jak jestem za sterem to sternik
1. Lokalne władze na podstawione osoby wykupują grunty (bo wiedzą co może być)
2. Lokalne władze piszą o dotację z UE na superprojekt, który zostaje zaakceptowany.
3. Unia daje kasę i lokalne władze sprzedają ziemię pod inwestycję mając sowity zarobek.
4. Z pieniędzy unijnych zostaje zbudowany kanał a lokalni politycy są zarobieni..
5. Jeżeli nad udostępnionym jeziorkiem lokalni politycy kupią ziemię pod motel/hotel/marinę/agroturystykę to są dodatkowo zarobieni

W podsumowaniu, lokalni politycy powinni być żywotnie zainteresowani omawianym projektem. ;)


Góra
 Zobacz profil  
Odpowiedz z cytatem  
PostNapisane: 8 lut 2013, o 18:24 

Dołączył(a): 3 sie 2009, o 14:17
Posty: 28
Podziękował : 3
Otrzymał podziękowań: 0
Uprawnienia żeglarskie: sternik jachtowy
ot! dylemat :D
bez względu na wszystko, już nie mogę się doczekać, kiedy znów tam będę, oj zima długa, ale kiedyś musi minąć, że się tak odezwę słowami piosenki :D


Góra
 Zobacz profil  
Odpowiedz z cytatem  
PostNapisane: 16 mar 2013, o 13:53 
Avatar użytkownika

Dołączył(a): 7 cze 2010, o 19:37
Posty: 13948
Lokalizacja: Port Rybnik
Podziękował : 1657
Otrzymał podziękowań: 2406
Uprawnienia żeglarskie: sternik jachtowy
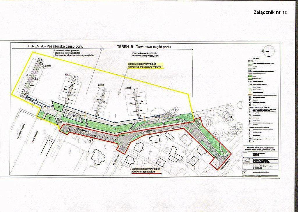
pierdupierdu napisał(a):
Na przykład Iława, która właśnie zaczyna budować duży towarowy port śródlądowy, przy całkowitym braku perspektyw dla żeglugi towarowej na Jezioraku i kanale Elbląskim...
Mam nieodparte wrażenie, że "mój" kanał do jeziora Gil Wielki ma więcej sensu

Zaprojektowanie i budowa portu śródlądowego w Iławie

Status: rozstrzygnięty


http://bip.warmia.mazury.pl/powiat_ilaw ... _w_Ilawie/


Załączniki:
Załącznik nr 10 - Rysunek poglądowy zakresu realizacji inwestycji.jpg
Załącznik nr 10 - Rysunek poglądowy zakresu realizacji inwestycji.jpg [ 154.59 KiB | Przeglądane 15340 razy ]

_________________
Wojciech1968 Port Rybnik
W życiu piękne są tylko chwile...
Góra
 Zobacz profil  
Odpowiedz z cytatem  
PostNapisane: 14 maja 2013, o 23:11 

Dołączył(a): 13 maja 2013, o 23:27
Posty: 3
Podziękował : 0
Otrzymał podziękowań: 2
Uprawnienia żeglarskie: nie podano
Ciekawy plan budowy kanału przedstawiony w tym wątku przez… Pierdupierdu był już rozpatrywany w XVIII wieku !

Mianowicie wtedy pojawiła się koncepcja połączenia jezior Oberlandu (Pogórza, obecnie w większości Pojezierze Iławskie) z Bałtykiem. Asumptem, oprócz przesłanek gospodarczych, do jej realizacji były również klęski żywiołowe jakie dotknęły wówczas okolice Miłomłyna i Ostródy. W 1771 r. na terenie urzędów miłomłyńskiego i ostródzkiego, powstało wiele szkód w wyniku wylewu wód z jezior Gil Wielki, Iłgi, Kocioł, Karnickie i Jaśkowskie, a także z rzeczki Korbanii i Liwy. Starszy inspektor od stawów licencjat von Morsztyn (Morstein) zaproponował wtenczas stworzenie, kosztem 1737 talarów, przekopu z Jez. Ilgi do Drwęcy (jez. Drwęckiego) i wykonanie najkrótszego i najlepszego połączenia pomiędzy jeziorami Gil - Kocioł i Kocioł – Karnickie. Te dwa ostatnie zbiorniki, miały naturalne spadki do rzeczki Korbani. Różnice względne poziomów wód tych jezior umożliwiały w łatwy sposób odprowadzenie ich zawartości do jeziora ostródzkiego. Plan ten zaakceptowano w Berlinie, 5 września 1771 r. Nie ma potwierdzenia, iż plan ten został ostatecznie skierowany do realizacji.
Opracowano na podstawie monografii K. Skrodzkiego, Dzieje ziemi zalewskiej 1305-2005, Zalewo, 2005.



Za ten post autor Ewingi otrzymał podziękowanie od: Wojciech
Góra
 Zobacz profil  
Odpowiedz z cytatem  
PostNapisane: 8 sty 2017, o 21:01 

Dołączył(a): 13 maja 2013, o 23:27
Posty: 3
Podziękował : 0
Otrzymał podziękowań: 2
Uprawnienia żeglarskie: nie podano
Niedawno znalazłem ciekawe informacje o połączeniu jez. Gil Wielki z Jeziorakiem. W publikacji "Park Krajobrazowy Pojezierza Iławskiego. Przewodnik Ilustrowany" jest następujący ustęp „Prawdopodobnie w średniowieczu funkcjonowało połączenie między Jeziorakiem i jeziorem Gil w rejonie Sąpów (obecnie zamulone).” Był to teren pograniczny pomiędzy pruskimi ziemiami Geria i Raydez. W jednym z późniejszych źródeł podano, że kanał łączący te oba jeziora zbudowany został później. Dowodem ma być plan pod nazwą "Niederungsgebiet zwischen dem Geserich-See und dem Gehl-See mit Verbidungskanal" przechowywany w Tajnym Archiwum Państwowej Fundacji Pruskiego Dziedzictwa Kulturalnego w Berlinie. Dokument ten w skali 1:5000 ma pochodzić z ok. 1800 r. Na dokładnych mapach tego terenu z XIX wieku nie ma uwidocznionego takiego kanału w okolicach Sąp (niem. Sumpf). Także nie znaleziono informacji o istnieniu połączenia wodnego w innych źródłach. Należy zauważyć, że różnica poziomów wód obu jezior jest istotna (Jez. Gil Wielki - 97,8 m.n.p.m. jez. Jeziorak -99,5 m.n.p.m).
W zał. mapa z 1893 r.


Załączniki:
mapa - Kopia.jpg
mapa - Kopia.jpg [ 94.57 KiB | Przeglądane 13657 razy ]
Góra
 Zobacz profil  
Odpowiedz z cytatem  
PostNapisane: 14 lut 2022, o 00:55 
Avatar użytkownika

Dołączył(a): 7 cze 2010, o 19:37
Posty: 13948
Lokalizacja: Port Rybnik
Podziękował : 1657
Otrzymał podziękowań: 2406
Uprawnienia żeglarskie: sternik jachtowy
https://www.facebook.com/12952996372839 ... 723294435/


Załączniki:
Screenshot_2022-02-14-00-52-36-928_com.facebook.katana.jpg
Screenshot_2022-02-14-00-52-36-928_com.facebook.katana.jpg [ 746.47 KiB | Przeglądane 8658 razy ]

_________________
Wojciech1968 Port Rybnik
W życiu piękne są tylko chwile...
Góra
 Zobacz profil  
Odpowiedz z cytatem  
PostNapisane: 26 wrz 2025, o 09:11 
Avatar użytkownika

Dołączył(a): 7 cze 2010, o 19:37
Posty: 13948
Lokalizacja: Port Rybnik
Podziękował : 1657
Otrzymał podziękowań: 2406
Uprawnienia żeglarskie: sternik jachtowy
Nowe pomysły https://www.facebook.com/share/p/17QJ3nisHR/

Jak donosiła prasa w 1881 r. utworzony został w Zalewie komitet do budowy kanału żeglownego pomiędzy jez. Ewingi i Rucewo Wlk. Niestety odstąpiono od tego projektu .Szlak kajakowy Jeziorak-Rucewo Małe-Rucewo Wielkie figurował jeszcze w przewodniku w latach 50.XX w. Załączony fragment mapy Jezioraka Petersona z 1789 r. pochodzi z Geheimes Staatsarchiv Preußischer Kulturbesitz w Berlinie.

Jest spora lista takich niezrealizowanych kanałów w basenie Jezioraka: Jeziorak-Gil Wielki (XVIII w.), Jeziora-Szymbarskie i Szymbarskie-Karaś (od 300 lat do XX w.), Dauby-Piekło (XIX w.), Ostkanal (Toruń-Jeziorak-Olsztyn-Śniardwy) i propozycja wodniaków Kanał Miłomłyn-Jeziorak z Gil Wielki.


Załączniki:
FB_IMG_1758874158697.jpg
FB_IMG_1758874158697.jpg [ 190.69 KiB | Przeglądane 446 razy ]

_________________
Wojciech1968 Port Rybnik
W życiu piękne są tylko chwile...
Góra
 Zobacz profil  
Odpowiedz z cytatem  
Wyświetl posty nie starsze niż:  Sortuj wg  
Utwórz nowy wątek Odpowiedz w wątku  [ Posty: 30 ] 


Kto przegląda forum

Użytkownicy przeglądający ten dział: Brak zidentyfikowanych użytkowników i 23 gości


Nie możesz rozpoczynać nowych wątków
Nie możesz odpowiadać w wątkach
Nie możesz edytować swoich postów
Nie możesz usuwać swoich postów
Nie możesz dodawać załączników

Szukaj:
[ Index Sitemap ]
Łódź motorowa | Frezowanie modeli 3D | Stocznia jachtowa | Nexo yachts | Łodzie wędkarskie Barti | Szkolenia żeglarskie i rejsy NATANGO
Olej do drewna | SAJ | Wypadki jachtów | Marek Tereszewski dookoła świata | Projektowanie graficzne


Wszystkie prawa zastrzeżone. Żaden fragment serwisu "forum.zegluj.net" ani jego archiwum
nie może być wykorzystany w jakiejkolwiek formie bez pisemnej zgody właściciela forum.żegluj.net
Copyright © by forum.żegluj.net


Nasze forum wykorzystuje ciasteczka do przechowywania informacji o logowaniu. Ciasteczka umożliwiają automatyczne zalogowanie.
Jeżeli nie chcesz korzystać z cookies, wyłącz je w swojej przeglądarce.



POWERED_BY
Przyjazne użytkownikom polskie wsparcie phpBB3 - phpBB3.PL